Images


Location
Property: Piazza on West Pine
Agency: 2B Residential
Address: 3939 & 3940 West Pine
Saint Louis, Missouri 63108
Phone: 314-376-4477
Fax: 314-376-4478
Area:
Sub Area:
School:
Style
Type:
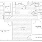
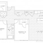
Bedrooms: 2.0
Bathrooms: 2.0
Square Feet (min): 971
Square Feet (max): 1435
Price
Price: $1,760
Range: $1,760 - $2,385
Deposit: $250
NR Deposit: $250
Pets
Pets: ,
Max Weight: 150
Pet Deposit: $300
Pet NR Deposit: $150
Restrictions
Minimum Age: 18
Min. Term: 6
Occupants: 5
Other
Description: Luxury apartment community in the Central West End walking distance to St. Louis University, Cortex Innovation District, shopping and dining. Plank flooring in living areas, carpeted bedrooms. Fully equipped kitchens with electric stove, dishwasher, disposal, microwave and refrigerator. In-unit washer/dryer. Select units will have patio or balcony. PHASE I kitchens have black appliances and laminate countertops. Phase II units have stainless steel appliances and granite countertops.
Amenities: Controlled access buildings. Courtyard saltwater pool with outdoor kitchen and poolside grilling, 24-hour fitness studio, pet spa and more located in Phase I building. Gated parking $55/mo, garage parking $125/mo. when available
Management: 2B Residential
Property Email: samantha@2BResidential.com
Hours: M-F 9-6 Sat & Sun 11-4
Units: 77
Directions: North on Vandeventer from Hwy 40/64 to West Pine left to property on right